-
Posts
727 -
Joined
-
Last visited
Content Type
Profiles
Forums
Events
Everything posted by Alextus
-
Да, смотрел, это лучше чем ничего, но не совсем то. такой экспорт исключает использование трекира, так как индикация стоит мЁртво. А нужно чтобы она вела себя точно так же как на виде LAlt+F1. (Поворачиваешь голову, индикация съезжает, возвращаешь трекир в центр и индикация въезжает обратно, а иначе прицел соврет и целится будет невозможно.) По сути экспорт был бы вообще не нужен, просто сделать копию изображения на 2-й монитор средствами видеокарты, а зеленую индикацию в узком спектре отсечь с помощью фильтра, который нанесен на отражатели реальных ИЛСов, но такого стекла недостать, а если бы и можно то дорого. К тому же, надо избавится от индикации на первом мониторе. Короче, этот вариант нереализуемый , я его для примера привел, чтобы понять какая нужна индикация.
-
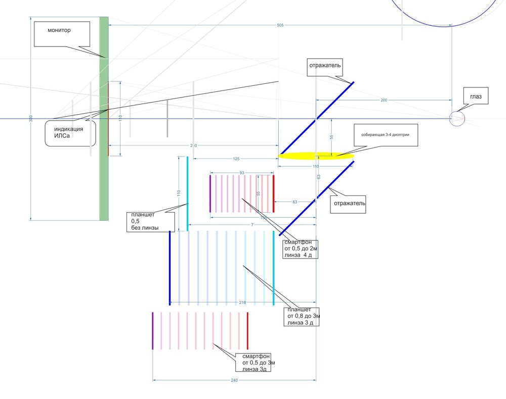
2-й расчет универсального ИЛСа. брал пропорции экрана 9х16 диагональ от 22 до 127 дюймов соответственно: размеры от 47х30 до 170х270 (то есть от монитора компа до экрана проектора) угол зрения от 32х градусов до 50 и расстояние от глаз до экрана получились от 0,5 до 3х метров ИЛС планируется для гаджетов с экранами от 5,5см до 11см (смартфоны, планшеты) регулировка (фокусировка) осуществляется за счет изменения расстояния от гаджета до линзы, выяснилось что оптимальная линза - 3 диоптрии осталось найти такую линзу и провести опыты:thumbup:
-
А что за ракета пускалась?
-
А я вообще извращенец тогда :D Мне интересны миссии в которых нужно использовать все возможности оборудования и даже потенциальные (выдуманные) возможности. Все люди разные.
-
Кто знает, что за кнопка/лампа рядом кремальерой?
-
ПНП, ПКП, КПП, ДА-200 сложны в изготовлении, нужны шестеренки их надо рассчитать, изготовить, закрепить на вал. Такие имитаторы будут очень дороги. А если на одной оси не больше 2-х стрелок, то нет проблем
-
Спасибо, когда понадобится обращусь к вам. КПП 1273, НПП МК будет проблематично сделать имитаторы, я попроще варианты ищу (без шестеренок)
-
интересный АГ, его конструкцию вполне можно повторить со всеми директорами. вот еще один посадочный прибор, что там за 3-й мотор?
-
Да и вообще надо понять какой минимальный набор для пилотирования, для пилотирования и навигации, (Вот во многих отечественных самолетах ВОВ вообще не было авиагоризонта, он нужен для минимума?) еще средний вариант подобрать.
-
Почему капец? Вот реальные приборы и большинство, что я пока выбрал можно назвать универсальными. Вариометр до 75м/с , мне кажется достаточно (есть и до 300, ВАР-300) тахометр понятно в % топливомер до 8000л достаточно? индикатор скольжение ЭУП-53 ...
-
Хотелось бы за основу реальные приборы брать
-
Вариометры тоже разные, от скороподъемности ЛА подбираются, на вертушках до 30м/с на истребителях до 70, разделять универсальность на 2? или просто брать максимальную шкалу? обороты в % они естественно универсальны. вот с указателем скорости, тоже ? какую шкалу брать делать ли комбинированный указатель КУС Топливомеры все очень разные. термометров, барометров, амперметров всяких куча. Авиагоризонт пока 1 возможен - наиболее простой по конструкции АГБ-3К. В урезанном варианте (без бленкера, индикатора скольжения, кремальеры) вполне доступен.
-
ЛА много всяких в ДКС, а будет еще больше, по будильникам напрашивается некий универсальный комплект, подходящий для большинства ЛА Но как его подобрать? Какие критерии универсальности? Кроме того есть технические ограничения, не более 2-х стрелок на одной оси. - чтобы они были более менее просто устроены (Теоретически можно любой имитатор сделать, но практически это будет сложно и дорого. Например ПНП-72 там столько всего нужно! 7моторов, куча шестеренок, цифровые индикаторы, энкодеры)
-
Я не программист, но еще вариант такой представляю: просто сдвинуть индикацию ИЛСа, она же какими то координатами привязана, вот сдвинут ее по Х вправо на 1000pix, за пределы картинки (предварительно monitors.lua настроив) чтобы она оказалась на черном поле Только этот сдвиг никак не должен повлиять на индикацию, тоесть формально она как бы на том же месте, а реально сдвинута. Такое возможно?
-
А можно размножить изображение средствами игры? Как для виртуального шлема оно размножено на каждый глаз (только там со сдвигом чтобы стерео эффект сделать), а нужно просто размножить и в одной из копий выключить картинку закабинного пространства. А в другой копии наоборот выключить ИЛС тогда все удастся
-
Мне вариант с муляжом кажется практичнее и проще, но видимо это не так эффектно и интересно. А с полноценным ИЛСом есть идея похожая на виртуальный шлем, когда есть конструкция и регулируемая оптика, а смартфон туда нужно свой ставить. Так и с ИЛСом нужно разработать только регулируемую конструкцию. Но для этого нужен экспорт.
-
Это здОрово, но мне как раз нужно движение индикации от разных сил и от положения виртуальной головы относительно нее. Ведь статичная индикация на железном ИЛСе значит, что и на мониторе изображение игры должно быть статичным, (без трекира), а это не интересно. Нужно вот как на видео, но подвижную индикацию экспортировать на 2-й монитор (с которого проекция в ИЛС идет) Или если по другому описать то, нужно на копии вида LALT+F1 отключить все кроме индикации.
-
Если планировать железный ИЛС, то надо его универсальным делать, для разных мониторов и телевизоров, надо выяснить разброс расстояний от глаз до экрана. До конца не понятно от чего оно зависит . от угла от дагонали от высоты от разрешения похоже что расстояния от монитора и от жк телевизора, при одинаковых размерах, разные. У вирпилов еще особенность может быть- для большего "вхождения" в игру расстояние меньше обычного
-
Вообще я имел в виду программный вывод индикации ИЛСа на 2-й монитор. Как его организовать? это скорее в тему ЛУА экспорт. Но механический трафарет для ЛА времен ВОВ, это интересная идея, правда чтобы сделать его подвижным тоже нужен экспорт каких-то данных. Скольжение, перегрузка или сразу данные смещения прицела по Х,У
-
Если в реальном СУ25 ракету Х-25л нужно было маневром самолета удерживать, становится понятно почему внешний подсвет в Афгане был для него эффективен, не смотря на то, что и наводчик и пускающий должны были точно знать где цель. А то, что ЕД не будут этого реализовывать понятно, есть приоритетные задачи. Интересно современные штурмовики (су-34) видят внешний подсвет?
-
Да, сейчас МЛки с КА-50 пускать невозможно, она падает как чугунная, на пол километра вниз пока скорость набирает, может это более правильно но, в первой Акуле такого не было. Поэтому пуск этих ракет с подскока, из за холма, уже невозможен. Все что остается для КА-50 (по работе с Х-25мл) это быть наводчиком для других ЛА, тумблер под ПНП имеется для этого. Вопрос только для каких ЛА? Может СУ34:smilewink: или на модернизированных 24-ках есть оборудование по поиску лазерных пятен?
-
Тут идея появилась, если лазер видно в тепловизор, то пятно будет легко найти на СУ-25т с Меркурием и соответственно тыкнуть в него ГСН ракеты с 2,5 градусами уже не проблема!
-
Так в чем отличия ГСН бомбы (Миража) от ГСН Х-25мл, у нее что широкий угол поиска пятна (не 2,5градуса)?
-
не понял ничего, бомба с лазерным наведением, ГСН как пятно обнаруживает? (только по русски)
