dimebug Posted July 8, 2011 Author Posted July 8, 2011 MDF could be ok for some parts like consoles, but for the front panel, it will blend with time. MDF isn't rigid enough in time to play any mechanical role. The adventage of MDF is when you need a perfect flat surface it's also easier to work and less expensive. The sides of left and right consoles could be done with MDF if you place a good number of fix points. You're right, I should change the 20 mm plywood to 18, it should be easyier to find.
metalnwood Posted July 8, 2011 Posted July 8, 2011 Stepping out of areas that I have experimented with but could something like this happen? I guess that the 27" is out of the way because of the switches etc that need to share the same space as the monitor. The problem being that either the monitor would ned to be to far recessed to look good for the gauges or the switches would need to stick out the front too far. What if the screen could be recessed back a bit but the image 'brought forward' to the gauges. Is there something that could do that? A quality fresnel lens or something similar? Don't know, just wondering out loud.
HitchHikingFlatlander Posted July 10, 2011 Posted July 10, 2011 Looking good Dimebug! http://dcs-mercenaries.com/ USA Squad
dimebug Posted July 13, 2011 Author Posted July 13, 2011 Hello, sorry for the slow progress, we're testing the projection stuff anfd it slow down the developpement. The side consoles files are ready, i must host them at checksix-fr.com i will do it the coming days... Some parts of the cockpit should be displayed at the French Flight Simulator Show at "Le Bourget airport" end of september.
dimebug Posted July 17, 2011 Author Posted July 17, 2011 side consoles avaliable, thanks to Checksix-fr.com for file hosting ftp://www.checksix-fr.com/Matos/docs/A10Cconsoles.zip 3
Levinsky Posted July 18, 2011 Posted July 18, 2011 Much appreciated - a huge help to us all. Thanks, Ken.
Dachs Posted July 18, 2011 Posted July 18, 2011 This is quite a project, and a time consuming one at that! I know it's a lot of work getting it all to fit together. Thank you for sharing! Now, get back to work ;) System: Asus z270 A Prime, Intel i7-7700K 4.8GHz, 32GB DDR4, RTX2080, Samsung 500GB 850 EVO SSD. Valve Index VR, TM Warthog Throttle & Grip, Virpil MongoosT-50CM2 base, TM TPDR Rudders. OS: Win10 Home
dimebug Posted July 18, 2011 Author Posted July 18, 2011 we did some very good progress on the projector stuff side. It seems that the best solution is to use 2 screens for MFCD and projector for other instruments. The use of screens is justified by a good MFCD resolution.
HitchHikingFlatlander Posted July 28, 2011 Posted July 28, 2011 (edited) Dimebug what did you use for reference on dimensions? I ask because another forum member released a front panel diagram with what I thought were accurate dimensions. I was going to use that to start my front panel. But if your drawings are based on something else I'll just wait until you're finished since your stuff is awesome in it's complete form! EDIT: I just finally received my HOTAS Warthog in the mail so now the waiting game is going to kill me, given I've been saving money for it for close to a year. I have to start building something lol! Edited July 28, 2011 by HitchHikingFlatlander http://dcs-mercenaries.com/ USA Squad
dimebug Posted August 2, 2011 Author Posted August 2, 2011 i used various sources found on the web, including picture with cote, do you have a link to the diagram ?
Succellus Posted August 2, 2011 Posted August 2, 2011 Impressive documentation and project. Even if people may not use it in its totality it certainly cn generate ideas to adapt its own concept. I ll be studying it. Impressive progress too. Awesome! HaF 922, Asus rampage extreme 3 gene, I7 950 with Noctua D14, MSI gtx 460 hawk, G skill 1600 8gb, 1.5 giga samsung HD. Track IR 5, Hall sensed Cougar, Hall sensed TM RCS TM Warthog(2283), TM MFD, Saitek pro combat rudder, Cougar MFD.
dimebug Posted August 2, 2011 Author Posted August 2, 2011 i progress slowly on the front stuff, waiting for results of new tests to limit the use of the projector for instruments only in the center of the front panel. Without the use of a projector, the center consol should be ready soon.
pitbull Posted August 7, 2011 Posted August 7, 2011 I wish someone could do a version with North America imperial measurements.....:music_whistling: :music_whistling: :music_whistling: :D MOBO ASUS P5QL-Pro, Intel Q9550 2.8Ghz @ 3.5 GHZ, 8GB DDR2 Crucial, XFX HD6950, TM Warthog, TIR4 /w Pro-Clip, 24 In Samsung Syncmaster LED, 2 X Cheapo 8in LCD's for MFD's and TM MFCD's attached to it, Windows 7 Ultimate x64.
HitchHikingFlatlander Posted August 7, 2011 Posted August 7, 2011 Convert it and use your imagination to round out the dimensions! That is more or less what I'm doing. You can try and be accurate all you want but in the end I find you have to play around to make things work. Dimebug here is the panel dimensions I'm using (I still can't remember the members name that shared it). I got impatient and started my from panel not the greatest but good enough. Check out my thread here in the pit builder forum. You can also see some my experimentation with the projector and methods to make it work. http://dcs-mercenaries.com/ USA Squad
dimebug Posted August 8, 2011 Author Posted August 8, 2011 i've also used that one :-), checking your thread
dimebug Posted August 8, 2011 Author Posted August 8, 2011 Well, dont worry for dimension, find someone who can print you the pdf scale 1/1 and no need of any dimensions... or convertions the front version without part for projector should be avaliable soon :
y2kiah Posted August 8, 2011 Posted August 8, 2011 guys, I've updated my dimensions since I posted that picture a long time ago. They are not very different, but more accurate I believe.
HitchHikingFlatlander Posted August 8, 2011 Posted August 8, 2011 y2kiah are that your drawing above? If so thanks, it proved invaluable to me in building! Dimebug that looks amazing! http://dcs-mercenaries.com/ USA Squad
dimebug Posted August 8, 2011 Author Posted August 8, 2011 Thanks Y2kiah, i will check. I did use some of your dimensions and some others taken on real parts. As i'm not building a 100% replica but something modular and easy to assemble, i had to make some adjustement with convertion inch/millimeters, but it's always good to have inputs.
y2kiah Posted August 8, 2011 Posted August 8, 2011 no problem at all, glad to help. dimebug your kit is looking awesome, I like the way you mounted the front panel.
dimebug Posted August 10, 2011 Author Posted August 10, 2011 (edited) it's not a real kit, just free blueprints for those who want to build something modular but looking good. Someone has build the left console and will built the right one this week. I hope he will post some pictures on this thread. My next steps is to build documents for the front parts and then start the ribs for the "optional" external fuselage. It would be great if someone does the same for panels, this way, people may have a great source for data about the A-10C cockpit. My next free plan are probably going to be a WWII warbird, as i can access real one sometimes. Edited August 10, 2011 by dimebug
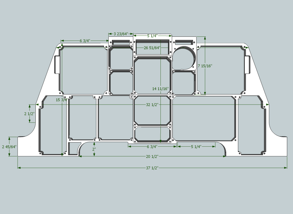
hog_driver111th Posted August 10, 2011 Posted August 10, 2011 Can one of you guys post the depth dimensions of the main panel? y2kiah, I'm also using your older file (will update with the new dims), but in printing it out even at 100%, I can't really get a good feel for the depth, especially the center area that holds the ADI, HSI, and the side extensions for the ALT, IAS... My other question is in regards to the top. I'm only taking a guess here, but shouldn't the top of the main panel be flat all the way across, or should we follow the image and create the 2 "steps" (area just under the fire pull handles). A-10C - FC3 - CA - L-39 - UH1 - P-51 - Hawk - BS2 - F-86 - Gazelle - F-5E - AV8B - F/A-18C i5-4590 - GTX 1060 - Oculus CV1 - TM:Warthog [sIGPIC]http://forums.eagle.ru/signaturepics/sigpic9979_1.gif[/sIGPIC]
y2kiah Posted August 10, 2011 Posted August 10, 2011 (edited) Here are the instrument risers on the front panel. Each layer is .25", so count the layers to get depth. At the thickest part, it is 1.75". Please understand that the width of the instrument mount (3.375") is not the same width as the instrument bezel. It is oversized a small amount to give the sidewalls more structure. As for the "two step" thing, I assume you mean the center section protrudes from the top by .25". When I reference photos of the cockpit, that's what it looks like to me, but it really doesn't matter you can keep it simple when you build and just make it flat. Edited August 10, 2011 by y2kiah
Recommended Posts